您的位置:乐动·体育,乐动online(中国) >造价知识>工程预算

工程预算 TIAN TONG YUAN

如何计算混凝土的工程量

天同源 工程预算 :2023-06-13 17:37

计算确定工程所需的混凝土材料的工程量,以便进行材料采购和施工计划的制定。同时,准确计算工程量可以避免材料浪费和成本的增加,确保工程质量和进度的控制。此外,对混凝土工程量的计算也有利于工程设计和施工方案的优化。混凝土在建设工程中又有不同的分类,计算时,就需要按照分类分别进行计算。

混凝土 (2).jpg

一、基础混凝土计算

1、设计图示尺寸以体积计算。

不扣除构件内钢筋、预埋铁件和伸入承台基础的桩头所占体积。

2、基础。

有肋带形混凝土基础,其肋高与肋宽之比在4:1以内的按有肋带形基础计算。超过4:1时,其基础底按板式基础计算,以上部分按墙计算。

箱式满堂基础应分别按无梁式满堂基础、柱、墙、梁、板有关规定计算,套相应定额项目。

设备基础除块体以外,其他类型设备基础分别按基础、梁、柱、板、墙等有关规定计算,套相应的定额项目计算。

二、柱混凝土计算

按图示断面尺寸乘以柱高以m³计算。柱高按下列规定确定。

混凝土1 (2).jpg

有梁板的柱高,应自柱基上表面(或楼板上表面)至上一层楼板上表面之间的高度计算。

无梁板的柱高,应自柱基上表面(或楼板上表面)至柱帽下表面之间的高度计算。

框架柱的柱高应自柱基上表面(或从楼层的楼板上表面)算至上一层楼板上表面,无楼层者,从柱基上表面至柱顶。

构造柱按全高计算,与砖墙嵌接部分的体积并入柱身体积内计算。

依附柱上的牛腿,并入柱身体积内计算。

柱计算公式:

V=SH

实例见教材

注意:构造柱截面积计算。

黄凝土2 (2).jpg

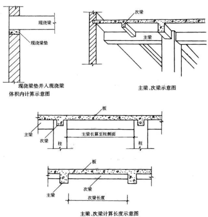
三、梁混凝土计算

按图示断面尺寸乘以梁长以m³计算,梁长按下列规定确定:

梁与柱连接时,梁长算至柱侧面;

主梁与次梁连接时,次梁长算至主梁侧面。

梁与混凝土墙连接时,梁长算至混凝土墙的侧面。伸入墙内梁头,梁垫体积并入梁体积内计算。

混凝土3 (2).jpg

梁计算公式

(1)过梁:V=SL

①现浇过梁 L=门窗洞口宽度+500㎜

②预制过梁

门窗洞口宽度>1500㎜ L=门窗洞口宽度+720㎜

门窗洞口宽度≤1500㎜ L=门窗洞口宽度+480㎜

(2)圈梁:V=SL

①圈梁截面:注意L形截面计算

②圈梁长度:外墙上按外墙中心线长计算,内墙上按内墙净长线计算。

(3)单梁、井子梁、框架梁:V=SL

伸入墙内的梁头和梁垫并入梁体积内计算;梁与柱相连时,梁长算至柱侧面;主梁与次梁相连时,次梁长算至主梁侧面。

(4)挑梁:伸入墙内部分并入圈梁计算。

四、板混凝土计算

按图示面积乘以板厚以m³计算,其中:

有梁板包括主、次梁与板,按梁板体积之和计算。

无梁板按板和柱帽体积之和计算。

平板按板实体体积计算。

现浇挑檐天沟与板(包括屋面板、楼板)连接时,以外墙为分界线,与圈梁(包括其他梁)连接时,以梁外边线为分界线。外墙边线以外或梁外边线以外为挑檐天沟。

各类板伸入墙内的板头并入板体积内计算。

预制板补现浇板缝时(现浇板带),按平板计算。

五、墙混凝土计算

按图示中心线长度乘以墙高及厚度以m³计算,应扣除门窗洞口及0.3 m³以外孔洞的体积,墙垛及突出部分并入墙体积内计算。

六、其它混凝土计算

整体楼梯包括楼梯踏步、休息平台、平台梁、斜梁及楼梯的连接梁,按水平投影面积计算,不扣除宽度小于500mm的楼梯井,伸入墙内部分不另增加。

阳台、雨篷(悬挑板),按伸出外墙的水平投影面积计算,伸出外墙的牛腿不另计算。带反挑檐的雨篷按展开面积并入雨篷内计算。

混凝土4 (2).jpg

S=(3.0-0.12*2)*(2.7+0.2+1.5-0.12)

七、预制构件混凝土计算

1、预制砼工程量均按图示实体体积以m³计算,不扣除构件内钢筋,铁件及小于300mm×300mm以内孔洞面积。(空心板的孔洞体积应扣除)

2、预制桩按桩全长(包括桩尖)乘以桩断面(空心桩应扣除孔洞体积)以m³计算。

3、砼与钢杆件组合的构件,砼部分按构件实体积以m³计算,钢构件部分按吨计算,分别套相应的定额项目。


此内容来源于天同源,如需转载请保留来源。
关键词:
更多工程造价预算案例
更多最新文章

Copyright All Right Reserved. 2012-2020 乐动·体育,乐动online(中国) 版权所有 豫ICP备19025206号-1 隐私声明